Белорусский производитель горно-шахтного оборудования продает свой завод в Минске

Office Life
Владелец крупного белорусского производителя горно-шахтного оборудования продает один из своих активов. Информация об этом появилась на площадке B4Y.by.
Белорусский производитель горно-шахтного оборудования продает свой завод в Минске
Фото: B4Y.by

Речь идет о предприятии «Белгидравлика». Оно входит в состав «Нива-Холдинга» белорусского бизнесмена Сергея Романовича. Холдинг был создан в конце мая 2015 года. Он занимается выпуском полного спектра оборудования для добычи и обогащения полезных ископаемых, а также его обслуживанием. В состав холдинга входит 12 предприятий.

Предприятие «Белгидравлика» было создано в мае 2001 года. Его специализация — производство гидроаппаратуры, насосных станций, трансформаторных подстанций, различного вспомогательного оборудования, а также его монтаж, наладка и ремонт. Всего же в его ассортименте более 20 наименований продукции.

Белорусский производитель горно-шахтного оборудования продает свой завод в Минске
Фото: B4Y.by

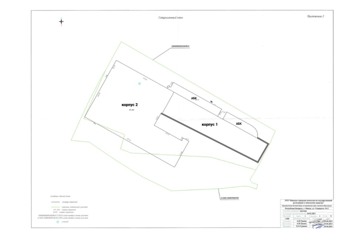
Предприятие полностью расположено на территории свободной экономической зоны «Минск» и занимает территорию в 1,1203 га. На ней расположены производственные корпуса площадью в 7860 «квадратов», цех металлообработки, покрасочная камера, склады, офисные помещения, различное производственное оборудование.

В объявлении сказано, что «Белгидравлика» — действующее промышленное предприятие с устойчивым бизнесом, развитой клиентской базой и готовой инфраструктурой. Среди постоянных заказчиков есть белорусские предприятия «Беларуськалий» и «БелАЗ», российские «Уралкалий» и «Северсталь», а также компании из Казахстана и других стран СНГ.

За «Белгидравлику» текущий владелец хочет около $5 млн. При этом «Нива-Холдинг» рассматривает продажу как 100%-ной доли в предприятии, так и его отдельных зданий и сооружений.

На аукцион выставили детский лагерь под Полоцком. Сколько стоит